インテリア的収納術と機能的収納術が住まいを快適にする家
収納上手な住まいで玄関もリビングもすっきりした間取り
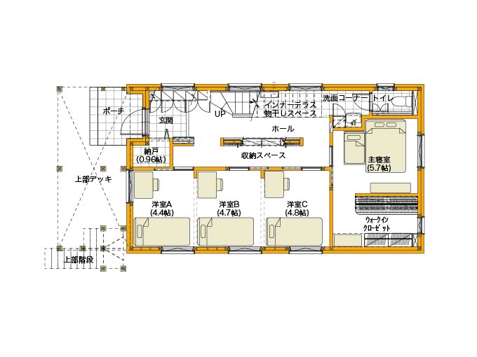
4LDKのこの家は、随所に収納術を活かした間取りです。玄関には壁一面のシュークローゼット収納や、靴のまま入れる便利な扉付き収納スペース、腰掛けて靴をはくことができるベンチ収納があり、玄関の機能性を高めています。1階ホールの中央の壁は両側から利用でき写真ギャラリーにもなる壁面収納棚、トイレにはトイレットペーパーのストックに便利な壁面収納、洗面コーナーにも隙間を利用したダストボックスを兼ねた扉付き隙間収納、主寝室には大容量のウォークインクローゼット収納があり、用途に応じた収納術が活かされています。2階リビングには壁一面に高さを抑えたベンチ収納があり、蓋付きのベンチ収納と引き出し収納にすることで、低くても取り出しやすい収納術が隠されています。2階リビング隣のモダンな和室には押入れ収納があり、ベンチ収納に入らない大型用品もしっかり収納。他にも、対面キッチンのカウンター下にはガラスの引き戸付き収納、スタディーコーナーのカウンターの上にも壁の厚さを活用した壁面収納があり、インテリア感覚で見せる収納も楽しんでいただけるプランです。各所の収納棚は、収納用品に応じて棚の位置を変えられるのでスペースを最大限に有効活用。吹き抜け天井の高さを活かしたロフトも、隠れた大容量収納スペースです。空間を無駄なく有効に活用する収納術豊富な間取りです。
対面キッチンで育児と家事を優しく両立する間取り
40坪台のこの家は、吹き抜け天井で開放的な大空間が楽しめる2階リビングの間取りです。広々とした2階リビングダイニングには3面採光の木製窓があり、1日を通して明るい空間設計。2階リビングに隣接したモダンな和室は、ヘリの無いタタミでシンプルな印象に。ロールカーテンを下げると簡単に個室に変化する、モダン感覚の和室です。対面キッチンや浴室の上部には吹き抜けを活かしたロフトがあります。収納ハシゴを利用して昇れるロフトには小窓もあり明るく、収納スペースとしても趣味の空間としても利用できます。奥様のメインステージでもある対面キッチンは、2階リビングやモダンな和室、ウッドデッキや外の景色を一望できる位置にあります。対面キッチンは、奥様の家事効率を高める収納力バツグンの大型バックカウンター付き。対面キッチンの裏側に家事室や洗面コーナーなどの水回りを集中させることで、3人のお子様の育児に忙しい奥様を家事動線が優しくサポートします。対面キッチンからは、お子様が2階リビングで遊ぶ様子やスタディコーナーでお勉強する姿を、いつでも見守りながらお料理ができる安心プラン。育児と家事を両立させる奥様の負担を、優しく軽減できる対面キッチン型の間取りプランです。




